18. Dezember 2009 HE108UL-N0001#M01
Usingen: Ausbau L3270 - Kreisel Westerfelder Weg
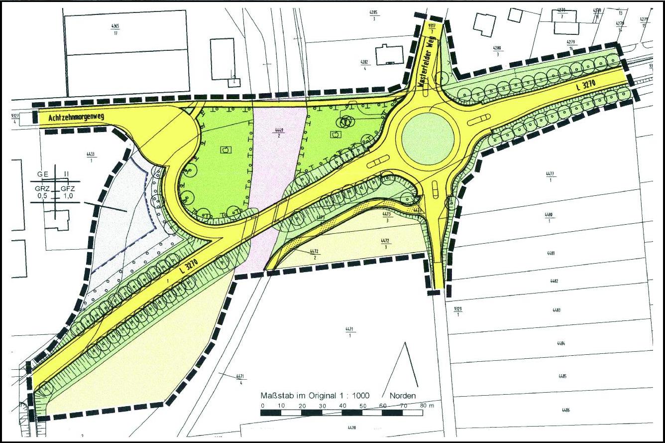
Themeneinstieg
Die ursprüngliche Idee war ein
einseitiger Zweirichtungradweg entlang der L3270 bis zur B456
hinunter auf der Seite der Kernstadt. Der Kreisel sollte Dies
wurde jedoch gestrichen, statt dessen bleibt es bei der die
L3270 querenden Fahrradroute Usingen - Westerfeld im Kreisel.
Die Planung zeigt einen schmalen "Bypass" für Fußgänger vom
Westerfelder Weg zum Gewerbegebiet. Ob dieser Weg breit genug
für Radfahrer ist, bleibt anhand der Grafik unklar, wäre aber
sinnvoll, um die Benutzung der Landesstraße zu vermeiden.
Vorschau - für größeres Bild
(je ca. 220 KB) bitte anklicken

Bild 1
Bilderläuterungen:
Bild 1: Bildauszug der Planung der Stadt Usingen (Quelle:
pdf, Stadt Usingen
)
ADFC-Kommentar:
Grundsätzlich wäre ein Radweg an der L3270 zwar wünschenswert
gewesen, allerdings hätte es dann Probleme bei der
Radverkehrsführung am Kreisel gegeben, denn die Anbindung eines
Zweirichtungsradweg wäre planerisch schwierig zu realisieren
gewesen - eine schlichte Vorbeiführung wäre nicht als sicher
einzustufen. Radfahrer sollen nach verkehrsrechtlichen Vorgaben
im Kreisel geführt werden, weil sich das als sicherer
herausgestellt hat. Mit dem Entfall des Radweges ist die
sichere Führung im Kreisel Realität geworden. Problematisch
könnte die Weiterfahrt in das Gewerbegebiet sein. Der ADFC wird
hierzu nachfragen. [Stefan
Pohl]
|